MiCasaConstructora te presenta Piedra, un modelo de vivienda que destaca por su diseño funcional, comodidad y aprovechamiento inteligente de los espacios.
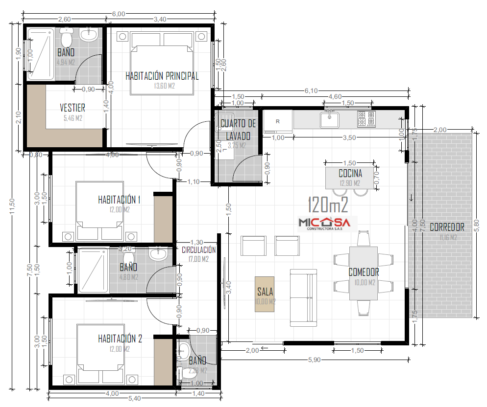
Con una construcción de 120 m², el modelo Piedra ofrece una distribución práctica y acogedora. Cuenta con 3 habitaciones, cada una pensada para brindar privacidad y confort, y 3 baños completos con acabados modernos que aportan mayor comodidad para toda la familia. El vestier añade un toque de organización y funcionalidad al área privada.
Sus áreas sociales integran una sala y comedor ideales para compartir momentos especiales, junto a una cocina funcional diseñada para facilitar el día a día. Además, dispone de un cuarto de lavado independiente y corredores que conectan los espacios de manera armónica, generando una sensación de amplitud y fluidez en toda la vivienda.
Piedra es el modelo ideal para:
Familias que buscan un hogar cómodo y bien distribuido.
Personas que valoran la funcionalidad sin renunciar al diseño.
Quienes desean un espacio práctico y acogedor para vivir.
Construye un hogar sólido, pensado para durar.
Contáctanos y conoce más sobre el modelo Piedra.









