Casa Moderna de 252 m² Modelo Escencia

Características del Proyecto

¿Quieres tener una casa moderna y sofisticada en un entorno natural y relajante? Nuestro modelo llano grande es la respuesta a tus deseos. Con amplios espacios abiertos, una piscina, y grandes ventanales que permiten la entrada de luz natural, te encantará pasar tiempo en casa.

¿Sueñas con una casa moderna, funcional y pensada para disfrutar cada espacio? Este modelo ha sido diseñado para brindarte confort, amplitud y un estilo sofisticado en un ambiente acogedor y armonioso.

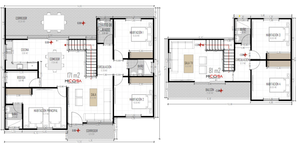
Con 252 m² de construcción, esta vivienda ofrece 4 amplias habitaciones, ideales para el descanso y la privacidad de toda la familia, además de 3 baños con un diseño práctico y elegante. Sus espacios están cuidadosamente distribuidos para aprovechar al máximo cada metro cuadrado: cuenta con un corredor que conecta las áreas de manera fluida, una cocina funcional, sala de TV perfecta para compartir momentos en familia, cuarto de lavado, bodega para almacenamiento adicional y zonas sociales pensadas para el día a día.

Este hogar combina diseño moderno, comodidad y versatilidad, permitiéndote crear recuerdos inolvidables en un entorno pensado para tu bienestar. Nuestro sistema constructivo garantiza economía, sostenibilidad y durabilidad, adaptándose a tus necesidades y estilo de vida.

En MiCasa Constructora hacemos realidad tus proyectos de construcción. Si buscas una casa duradera, hermosa y hecha a tu medida, contáctanos y descubre cómo podemos ayudarte a construir el hogar de tus sueños

Detalles del Proyecto

Tipo de Construcción

Construcción Tradicional

Estilo

Casa Moderna

Área

252 m²

Nº de Pisos

2

Nº de Habitaciones

4

Nº de Baños

3

Otras áreas

Sala, cocina, comedor, sala TV, balcón, cuarto de lavado y corredores

Plano

Ubicación del Proyecto

Avance de Obra

Nuestro proceso se divide en 3 pilares principales para poder garantizar el cumplimiento de tiempos de entrega y la satisfacción del cliente en cada etapa del proyecto.

Planos y diseño Arquitectónico
100%
Preparación del Terreno
0%
Construcción y Obra Civil
0%

Hacemos realidad tus proyectos de construcción, ofreciendo diversas opciones, diseños personalizados y adaptándonos a tu presupuesto.

Ofrecemos la construcción de casas a medida en un lote propio. Con nuestro equipo de expertos en construcción, transformaremos tu terreno en el hogar de tus sueños. Cumplimos altos estándares de calidad.

Otros Proyectos

Boletín informativo

Suscríbete

¿Quiere ser notificado sobre nuestras Novedades y ofertas?. Simplemente, regístrese y le enviaremos una notificación por correo electrónico.
WeCreativez WhatsApp Support
Nuestro equipo de atención al cliente está aquí para responder a sus preguntas.
👋 Hola. ¿Cómo podemos ayudarte?

Account details will be confirmed via email.