MiCasaConstructora te presenta Reserva, un modelo de vivienda que combina diseño, amplitud y funcionalidad, pensado para quienes buscan un hogar cómodo y bien organizado.
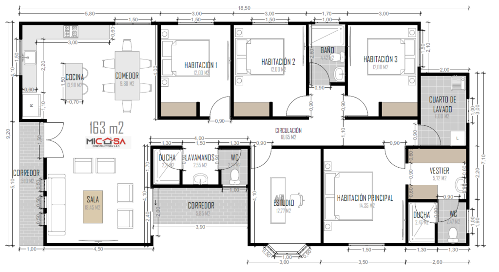
Con una construcción de 163 m², el modelo Reserva ofrece espacios cuidadosamente distribuidos para adaptarse a las necesidades de la vida moderna. Cuenta con 4 habitaciones, ideales para el descanso y la privacidad de cada miembro de la familia, y 3 baños completos con acabados de alta calidad.
Sus áreas sociales incluyen una sala y comedor amplios, perfectos para compartir momentos especiales, además de una cocina funcional diseñada para facilitar el día a día. El estudio brinda un espacio ideal para el trabajo en casa o zona de lectura, mientras que el vestier aporta comodidad y orden. Los corredores conectan los espacios de manera armoniosa, generando una sensación de amplitud y fluidez en toda la vivienda.
Reserva es el modelo ideal para:
Familias que buscan un hogar moderno y versátil.
Personas que necesitan espacios adicionales para trabajo o estudio.
Quienes valoran el diseño, el confort y la funcionalidad en cada detalle.
Haz realidad el hogar que siempre soñaste.
Contáctanos y conoce más sobre el modelo Reserva.









