Casa Campestre de 171m² Modelo Bosque

Características del Proyecto

MiCasaConstructora te presenta Bosque, un modelo de vivienda amplio y funcional, ideal para quienes buscan comodidad, armonía y espacios pensados para compartir en familia.

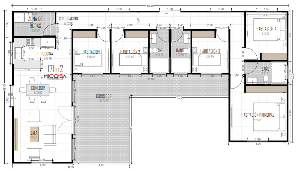
Con una construcción de 171 m², el modelo Bosque ofrece una distribución inteligente que aprovecha cada espacio al máximo. Cuenta con 5 habitaciones, perfectas para familias numerosas o para quienes desean disponer de espacios adicionales como estudio u oficina en casa, y 3 baños completos con acabados modernos y de alta calidad.

Sus áreas sociales incluyen una sala y comedor amplios, ideales para reuniones y momentos especiales, mientras que el corredor aporta fluidez y conexión entre los diferentes ambientes del hogar. La zona de ropas está diseñada para brindar practicidad y orden, haciendo más cómodo el día a día.

Bosque es el modelo perfecto para:

  • Familias que necesitan amplitud y versatilidad en su hogar.

  • Personas que valoran el confort y la funcionalidad en cada detalle.

  • Quienes sueñan con un espacio acogedor para crear grandes momentos.

Haz realidad el hogar que siempre has imaginado.
Contáctanos y descubre cómo el modelo Bosque puede convertirse en tu nuevo hogar.

Detalles del Proyecto

Tipo de Construcción

Construcción Tradicional

Estilo

Casa Campestre

Área

171 m²

Nº de Pisos

1

Nº de Habitaciones

5

Nº de Baños

3

Otras áreas

Sala, cocina, comedor, cuarto de ropas y corredores

Plano

Ubicación del Proyecto

Avance de Obra

Nuestro proceso se divide en 3 pilares principales para poder garantizar el cumplimiento de tiempos de entrega y la satisfacción del cliente en cada etapa del proyecto.

Planos y diseño Arquitectónico
100%
Preparación del Terreno
0%
Construcción y Obra Civil
0%

Hacemos realidad tus proyectos de construcción, ofreciendo diversas opciones, diseños personalizados y adaptándonos a tu presupuesto.

Ofrecemos la construcción de casas a medida en un lote propio. Con nuestro equipo de expertos en construcción, transformaremos tu terreno en el hogar de tus sueños. Cumplimos altos estándares de calidad.

Otros Proyectos

Boletín informativo

Suscríbete

¿Quiere ser notificado sobre nuestras Novedades y ofertas?. Simplemente, regístrese y le enviaremos una notificación por correo electrónico.
WeCreativez WhatsApp Support
Nuestro equipo de atención al cliente está aquí para responder a sus preguntas.
👋 Hola. ¿Cómo podemos ayudarte?

Account details will be confirmed via email.